MOBIRISE
Home
Photos
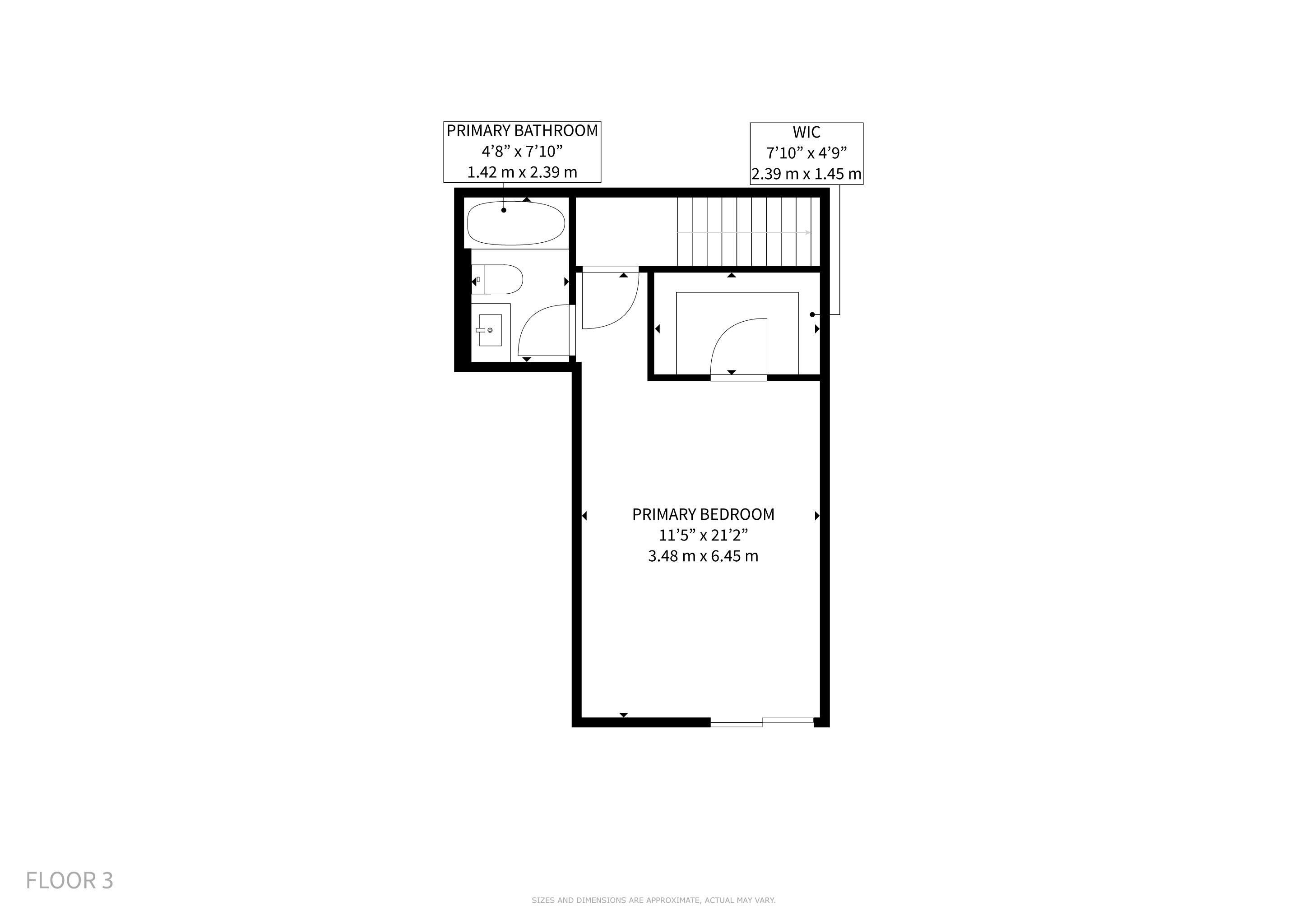
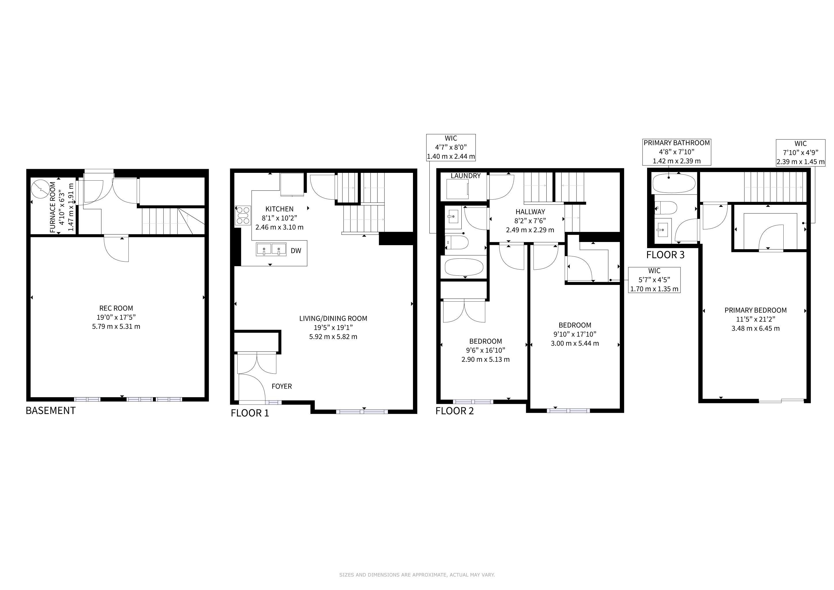
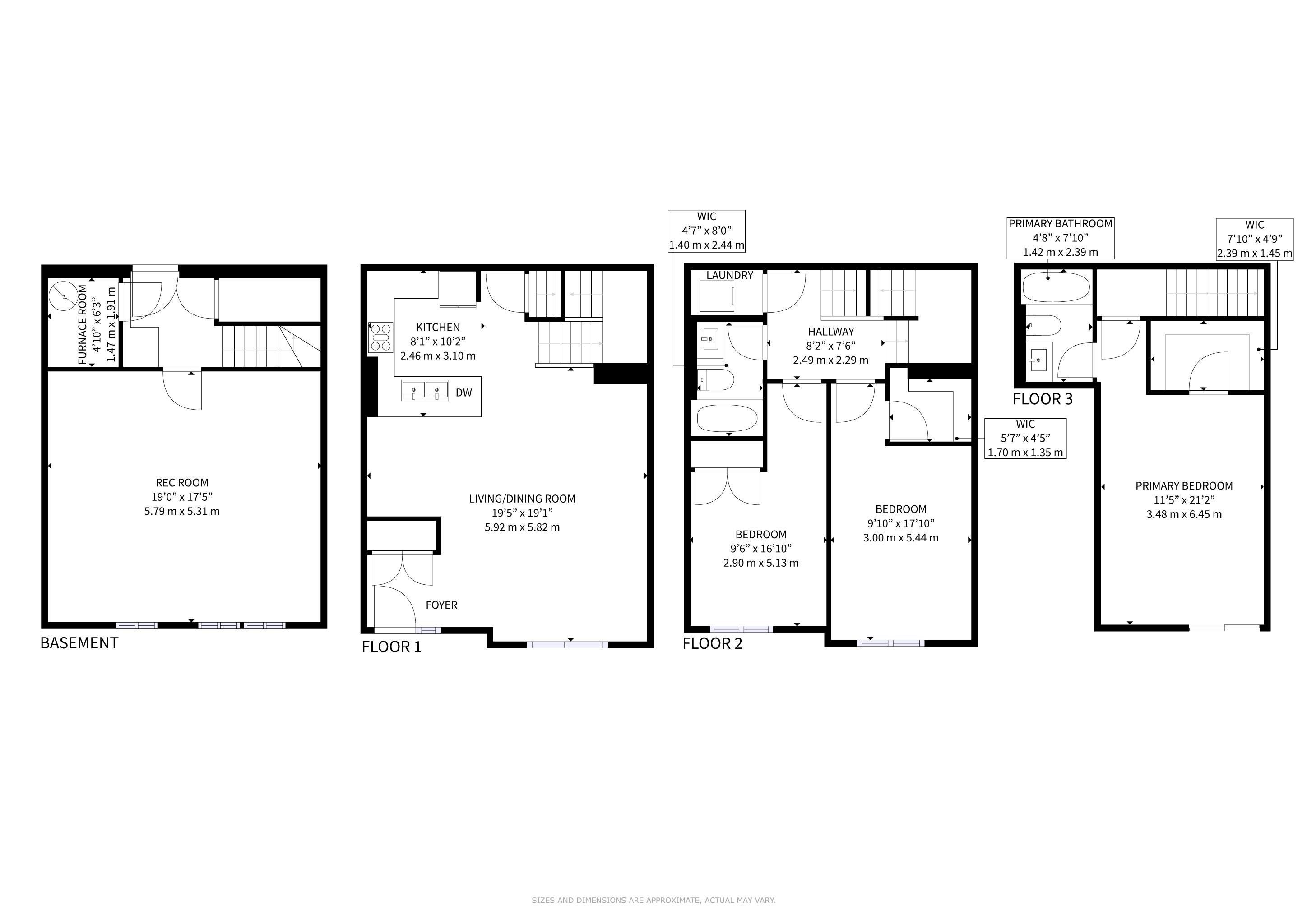
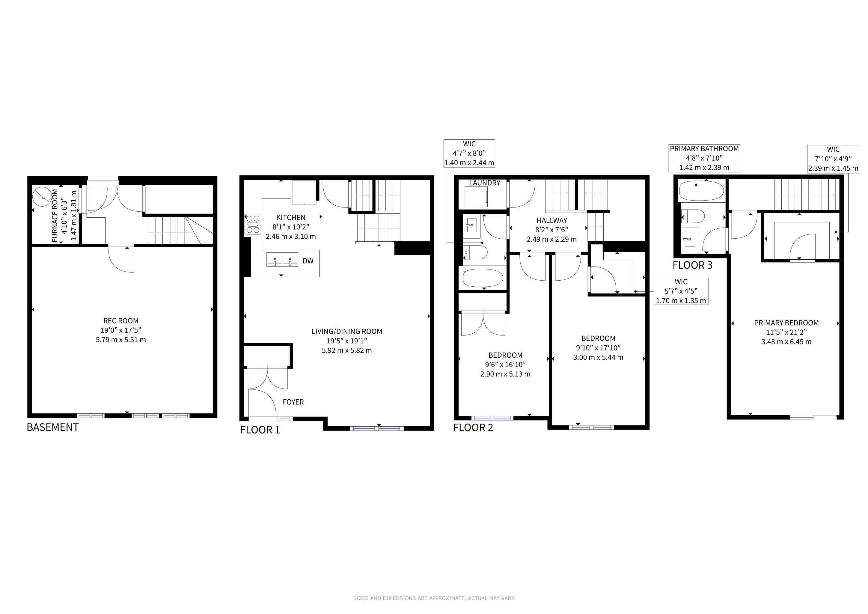
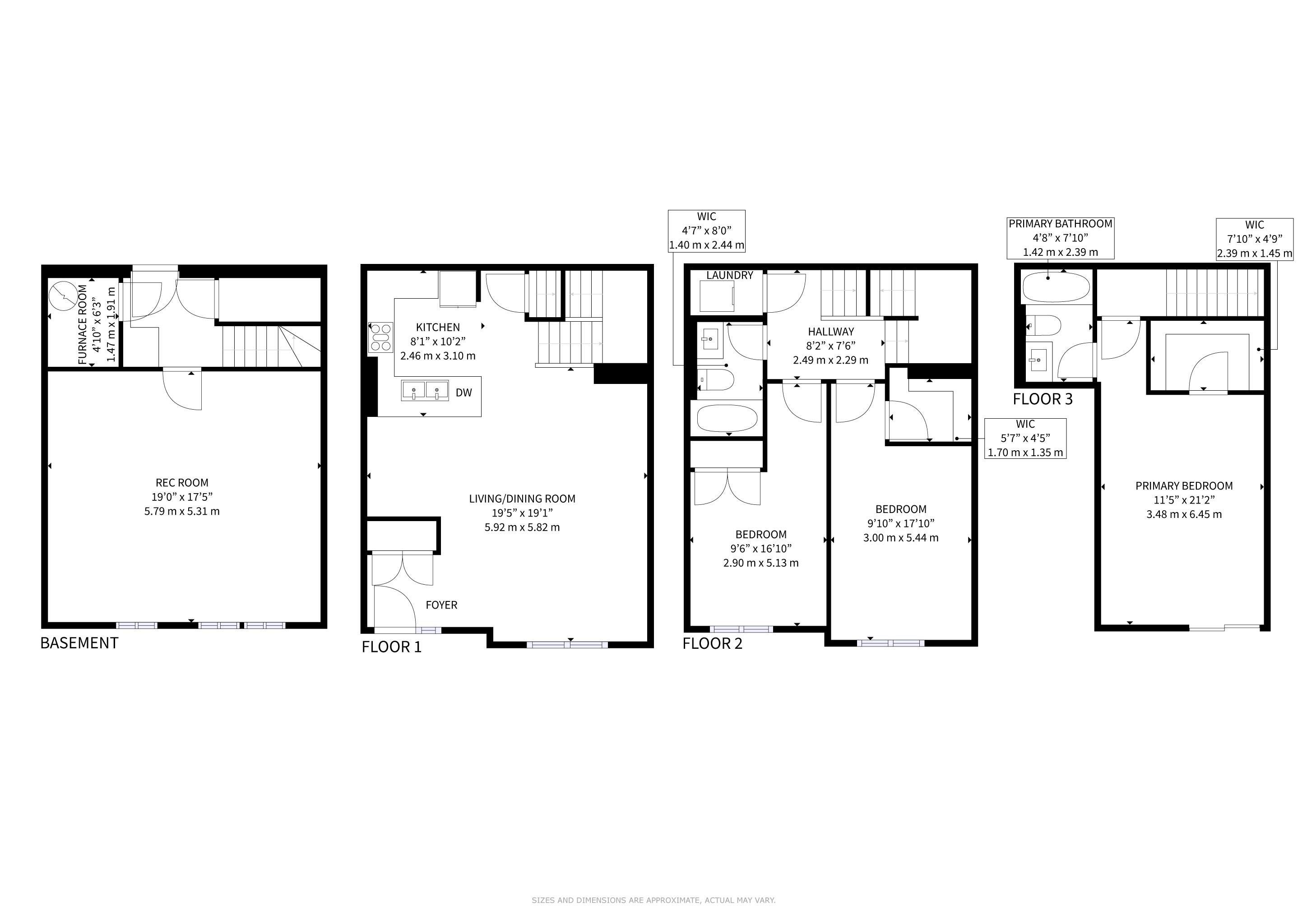
Floorplan
Schools
Map
76 Unity Gardens Dr
Markham
Photos
x
Close
Show all photos
Floorplan
x
Close
Schools
Map